Belle
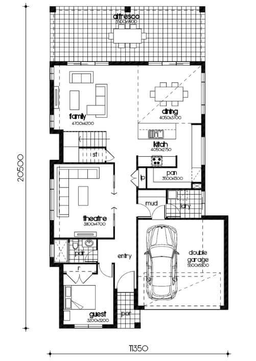
The Belle 38 by Lily Homes offers the perfect harmony of sophistication, comfort, and practicality. Designed for modern families, this spacious two-storey home features generous open-plan living areas, a gourmet kitchen with a walk-in pantry, and seamless indoor-outdoor flow — ideal for entertaining.
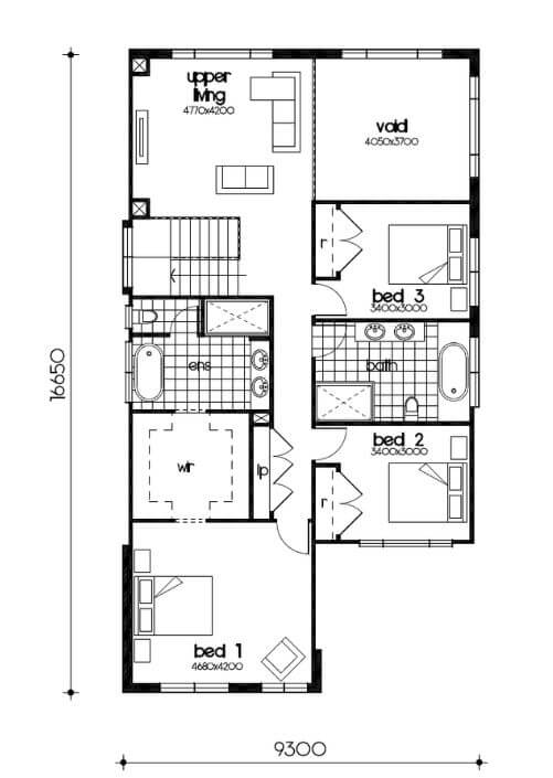
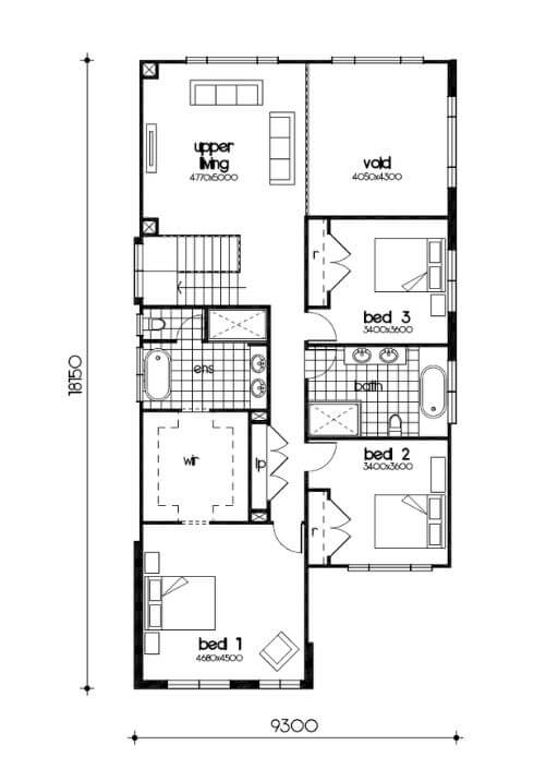
Upstairs, four beautifully appointed bedrooms provide plenty of space for everyone, including a luxurious master suite with a private ensuite and walk-in robe. With multiple living zones, smart storage, and contemporary finishes throughout, the Belle 38 delivers both style and substance for those seeking a home that truly elevates family living.
The open-plan kitchen, dining, and family areas create a welcoming heart of the home, enhanced by a walk-in pantry and seamless access to the alfresco space—ideal for entertaining or relaxed outdoor meals. A separate living room offers a versatile retreat for quiet moments or family movie nights.
With clever zoning, generous storage, and a natural flow between spaces, the Sunflower 23 combines functionality with contemporary style to make everyday living a breeze.
SIZES
FLOORPLAN
SPECS

4

3

2

348.1
DIMENSIONS
House Area : 348.1
House Length : 20.5
House Width : 11.35
FLOORPLAN
SPECS

3

2.5

2

321.9
DIMENSIONS
House Area : 236.4
House Length : 20.3
House Width : 11.35
FLOORPLAN
SPECS

4

2.5

2

373.3
DIMENSIONS
House Area : 373.3
House Length : 21
House Width : 22.3

















